城陽市寺田市ノ久保 注文住宅 条件付き土地

【外観】の画像

【外観】 土地189.09㎡(57.19坪)、南西角地の建築条件付き土地のご紹介です(^◇^)

【土地図】の画像

【土地図】 -

【参考プラン】の画像

【参考プラン】 延床面積:98.12㎡ 1F:54.24㎡  LDK17.8帖 洋室4.5帖

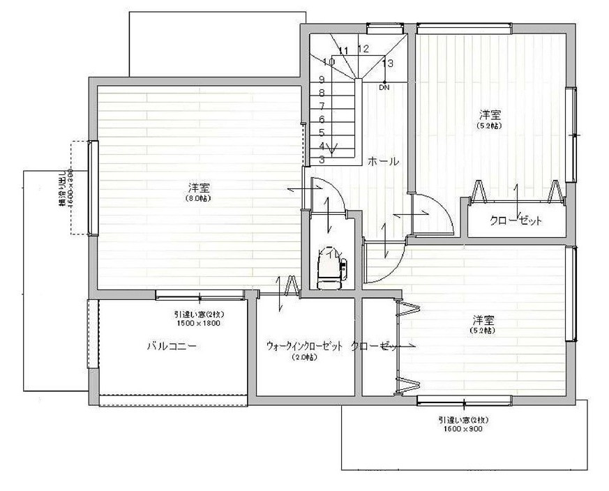
【参考プラン】の画像

【参考プラン】 2F:43.88㎡ 洋室8帖 洋室5.2帖 洋室5.2帖 WIC2帖

【前面道路含む現地写真】の画像

【前面道路含む現地写真】 最寄り駅はJR『城陽駅』徒歩11分です。近鉄『寺田駅』へは京阪バス『男女参画センター停』より乗車時間9分でアクセスできます。

【前面道路含む現地写真】の画像

【前面道路含む現地写真】 【参考プラン情報】 3台駐車可能な駐車スペースに、前道も6mとゆったりとした広さですので駐車も安心。4LDKと部屋数が豊富で、ウォークインクローゼットが完備された収納力のある間取りです。

【前面道路含む現地写真】の画像

【前面道路含む現地写真】 【参考プラン情報】 LDKは17.8帖と広く、リビング階段ですのでご家族とのコミュニケーションの時間が増えます。

【前面道路含む現地写真】の画像

【前面道路含む現地写真】 〈こちらの物件〉に興味がある方はお気軽にお問い合わせ下さい!月々のお支払い希望額からお客様が購入可能な物件の価格をシミュレーション致します!

【前面道路含む現地写真】の画像

【前面道路含む現地写真】 【参考プラン情報】 全居室収納付きですので、お部屋を広くご使用いただけます(^^)/

【前面道路含む現地写真】の画像

【前面道路含む現地写真】 【参考プラン情報】 洋室8帖にあるウォークインクローゼットは2帖の広さがあり、オフシーズンの衣類などをたくさん収納できます。

【前面道路含む現地写真】の画像

【前面道路含む現地写真】 【参考プラン情報】 南向きバルコニーは道路に面しているため、日当たり良好で、南側には建物が無く通風に良好で洗濯物が早く乾きそうです(^^♪

【前面道路含む現地写真】の画像

【前面道路含む現地写真】 【参考プラン情報】 トイレは2ヶ所ありますので、朝の忙しい時間でも混み合う心配がなく、来客の際も助かります。

【前面道路含む現地写真】の画像

【前面道路含む現地写真】 《ローンの事やお家探しのご相談は(株)ゆいホームにお任せ下さい。ちょっとした疑問にも解りやすくお応えします。》お気軽にどうぞ(^^)/

【前面道路含む現地写真】の画像

【前面道路含む現地写真】 スーパー《京都生活協同組合 コープ城陽》コンビニ《ファミリーマート 城陽駅南店》が10分圏内と近く買い物便利地です。

【前面道路含む現地写真】の画像

【前面道路含む現地写真】 アル・プラザ城陽店が車で約7分と気軽にショッピングが楽しめます。

【前面道路含む現地写真】の画像

【前面道路含む現地写真】 現地にある看板が当社【ゆいホーム】です(^◇^)物件に関するご質問はいつでもお気軽にお問合せ下さい!!

【前面道路含む現地写真】の画像

【前面道路含む現地写真】 小学校《寺田小学校》、中学校《城陽中学校》が徒歩10分圏内と通学面も安心の距離です。

【前面道路含む現地写真】の画像

【前面道路含む現地写真】 《現地》を一度ご覧になられませんか?《周辺環境》も含め、現地をご案内いたします。お気軽にお問い合わせ下さい(^^)/

【前面道路含む現地写真】の画像

【前面道路含む現地写真】 この敷地だと「どれくらいの建物が建つの」「建物価格はどれくらい?」お客様の知りたいをハウスアドバイザーがお応えします。

【展望】の画像

【展望】 注文住宅ならご家庭のライフプランに沿った間取や仕様で建築できます!ご希望の間取りや使用をお聞かせください(^^)/

【前面道路含む現地写真】の画像

【前面道路含む現地写真】 -

【前面道路含む現地写真】の画像

【前面道路含む現地写真】 -

【外観】の画像 外観
【土地図】の画像 土地図
【参考プラン】の画像 参考プラン
【参考プラン】の画像 参考プラン
【前面道路含む現地写真】の画像 前面道路含む現地写真
【前面道路含む現地写真】の画像 前面道路含む現地写真
【前面道路含む現地写真】の画像 前面道路含む現地写真
【前面道路含む現地写真】の画像 前面道路含む現地写真
【前面道路含む現地写真】の画像 前面道路含む現地写真
【前面道路含む現地写真】の画像 前面道路含む現地写真
【前面道路含む現地写真】の画像 前面道路含む現地写真
【前面道路含む現地写真】の画像 前面道路含む現地写真
【前面道路含む現地写真】の画像 前面道路含む現地写真
【前面道路含む現地写真】の画像 前面道路含む現地写真
【前面道路含む現地写真】の画像 前面道路含む現地写真
【前面道路含む現地写真】の画像 前面道路含む現地写真
【前面道路含む現地写真】の画像 前面道路含む現地写真
【前面道路含む現地写真】の画像 前面道路含む現地写真
【前面道路含む現地写真】の画像 前面道路含む現地写真
【展望】の画像 展望
【前面道路含む現地写真】の画像 前面道路含む現地写真
【前面道路含む現地写真】の画像 前面道路含む現地写真

売地

価格
2,380万円
所在地
京都府城陽市寺田市ノ久保 MAP
交通
奈良線「城陽」駅徒歩10分
土地面積(坪数)
公簿 : 189.09㎡ (57.19坪)
建ぺい率
50%
容積率
80%

まずはご相談ください!

075-606-2431

営業時間
9:30~19:00
定休日
毎週水曜日

担当者スタッフより

居村貴雄

おすすめポイント

【城陽市寺田市ノ久保 土地《建築条件付き》のご紹介】

◆土地約57坪!南西角地につき日当たり・通風良好
◆前道約6mで、駐車が苦手な方でも安心!
◆参考プランあります(^^)/ご希望の間取りや仕様をご相談下さい
◆JR奈良線『城陽駅』徒歩11分
寺田小学校 城陽中学校

◇物件探しからアフターフォローまで、お客様に寄り添い徹底サポート!
◇無理のない返済計画で、憧れのマイホームを実現!

居村貴雄 (部署名:営業係長 | 資格:丙種危険物取扱者)

【建物参考プラン:4LDK】
延床面積:約98.12㎡(1F約54.24㎡:2F約43.88㎡)

■小学校《寺田小学校》中学校《城陽中学校》が徒歩10分圏内と通学面で安心
■スーパー《京都生活協同組合 コープ城陽》コンビニ《ファミリーマート 城陽駅南店》が10分圏内と近く買い物便利地
■アル・プラザ城陽店が車で約7分と気軽にショッピングが楽しめます

お家探しは「注文建築」にするべきか「建売住宅」にするべきか、ゆいホームが一緒に考えます。『無理のない理想のマイホーム』を実現しましょう!まずは、お話しをお聞かせ下さい。ご相談は、もちろん無料です!

「どれくらいの建物が建つの」「建物価格はどれくらい?」お客様の知りたいをハウスアドバイザーがお応えします。

◆◇◆注文建築に興味がある方は、お気軽にお問い合わせ下さい!◆◇◆

《現地》を一度ご覧になられませんか?《周辺環境》も含め、現地をご案内いたします。お気軽にお問い合わせ下さい(^^)/

〈こちらの物件〉に興味がある方はお気軽にお問い合わせ下さい!月々のお支払い希望額からお客様が購入可能な物件の価格をシミュレーション致します(*´▽`*)

《ローンの事やお家探しのご相談は(株)ゆいホームにお任せ下さい。ちょっとした疑問にも解りやすくお応えします。》お気軽にどうぞ(^^)/

「毎月の支払いはいくらになるの?」 「今の家賃とそんなに変わらないなら・・」 「土地から探して注文建築するのは簡単?」 「今の持家を売却して新居に引っ越したい!」

(株)ゆいホームでは、ご購入・ご売却・住宅ローンなどのあらゆるご相談にお応えします。 もちろん相談は無料です!まずはお気軽にお電話下さい。

ゆいホームでは、お家の購入について不安やお悩みの方に「マイホームとお金の話~無料診断実施中」です。この機会にぜひお試し下さい(^◇^)まずは、お問合せをお待ちしております!!

まずはご相談ください!

営業時間
9:30~19:00
定休日
毎週水曜日

物件概要

物件番号:96945892 /  情報更新日:2025年12月04日 /  更新予定日:2025年12月18日 /  取引条件の有効期限:2025年12月18日 情報の見方
価格(坪単価) 2,380万円 (41.62万円) 所在地 京都府城陽市寺田市ノ久保 MAP
交通
    奈良線「城陽」駅徒歩10分
    近鉄京都線「寺田」駅徒歩18分
土地面積(坪数) 公簿 : 189.09㎡(57.19坪)
私道負担面積 /
セットバック
- / 無 現況 更地
土地権利 所有権 建築条件
地目 / 地勢 宅地 / 平坦 接道状況 角地(南 公道 6.0m 間口 13.9m)(西 公道 6.0m 間口 10.2m)
建ぺい率 / 容積率 50% / 80% 最適用途 住宅用地
用途地域 第一種低層住居専用 都市計画 市街化区域
土地の敷金 / 保証金 - 借地料 / 借地期間 - / -
傾斜地部分面積 - 路地状敷地 -
取引態様 売主 国土法届出要否 不要
引渡時期 即時 引渡条件 更地渡
法令上の制限 高度地区/※第一種高度地区※法22条区域【その他】※建築条件外し別途250万円要す※参考プランあり 販売区画数 / 総区画数 1区画 / 1区画
設備条件
  • 日当たり良好
  • 閑静な住宅地
  • 都市ガス
  • 公営水道
  • 公共下水
  • 電気有
備考 【寺田小 城陽中】
※第一種高度地区
※法22条区域
※建築条件外し別途250万円要す
※参考プランあり
〔情報と現況が異なる場合は、現況優先といたします。〕
※建築条件付き土地とは、その土地に建築する建物の建築請負契約が、 一定期間内に成立することを条件として売買される土地のことをいいます。 建築請負契約成立に向けて設計プランを協議するため、 土地購入者が自己の希望する建物の設計協議をするために必要な相当の期間の交渉期間が設定され、 その期間内で希望を満たすプランが実現できるかどうかにより結論を出します。 なお、この期間は概ね3ヶ月程度とされています。 納得のいくプランが出来ず、建築請負契約が成立しない場合、土地売買契約は白紙に戻り、 土地契約にかかった代金(土地代金、手付金など)は名目のいかんに関わらず、全て返却されます。

地図

※地図上に表示される物件の位置は付近住所に所在することを表すものであり、実際の物件所在地とは異なる場合がございます。

まずはご相談ください!

営業時間
9:30~19:00
定休日
毎週水曜日

取り扱い店舗(株式会社 ゆいホーム)

株式会社 ゆいホームの画像

所在地
京都府京都市伏見区桃山南大島町73-86 
電話番号
075-606-2431
営業時間
9:30~19:00
定休日
毎週水曜日

まずはご相談ください!

営業時間
9:30~19:00
定休日
毎週水曜日