八幡市八幡舞台 土地

【外観】の画像

【外観】 敷地約30坪の整形地です。約11.6mの広々とした間口で約6.5mにゆったりとした前道に面しています。現況更地ですので、スピーディーに建築計画を進められます。

【土地図】の画像

【土地図】 -

【参考プラン】の画像

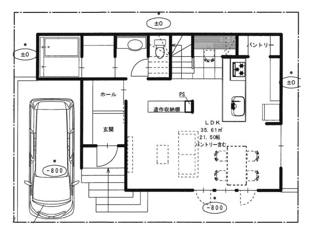
【参考プラン】 建物参考プラン【1階:52.17㎡ 2階:44.72㎡】 外構費用別途

【参考プラン】の画像

【参考プラン】 1階:LDK21.5帖 2階:洋室6.0帖・洋室5.0帖・洋室5.0帖・WIC3.0帖

【外観】の画像

【外観】 スーパーやコンビニ、ドラッグストアが徒歩10分圏内でお買物便利な立地です。

【前面道路含む現地写真】の画像

【前面道路含む現地写真】 前面道路は約6.5mとゆったりとした広さです。運転が苦手な方もゆとりをもって運転できるので駐車の際も安心です。

【前面道路含む現地写真】の画像

【前面道路含む現地写真】 小学校徒歩5分で通学にも安心の距離です。児童公園も徒歩圏内に点在しています。

【前面道路含む現地写真】の画像

【前面道路含む現地写真】 【参考プラン情報】 LDKは21.5帖の広々とした空間です。リビング階段で自然と家族がリビングに集まり、家族団らんの時間をゆったりとお過ごしいただけます。

【前面道路含む現地写真】の画像

【前面道路含む現地写真】 【参考プラン情報】 キッチンは対面式キッチンでご家族とコミュニケーションを取りながら食事の支度ができます。キチンにパントリーが設けられているので、食材のストックなどに便利です。

【前面道路含む現地写真】の画像

【前面道路含む現地写真】 【参考プラン情報】 2階の洋室は振り分けタイプの間取りでプライバシーを確保できます。5帖のお部屋が2室と6帖のお部屋が1室あり、各お部屋に収納が設けられているのでお部屋を広くお使いいただけます。

【前面道路含む現地写真】の画像

【前面道路含む現地写真】 【参考プラン情報】 6帖の洋室の収納はWICになっており、広さは3帖のスペースです。衣類はもちろん、スーツケースやシーズンオフの衣類や寝具などの収納にも便利です。

【前面道路含む現地写真】の画像

【前面道路含む現地写真】 《現地》を一度ご覧になられませんか?《周辺環境》も含め、現地をご案内いたします。お気軽にお問い合わせ下さい(^^)/

【前面道路含む現地写真】の画像

【前面道路含む現地写真】 《ローンの事やお家探しのご相談は(株)ゆいホームにお任せ下さい。ちょっとした疑問にも解りやすくお応えします。》お気軽にどうぞ(^^)/

【前面道路含む現地写真】の画像

【前面道路含む現地写真】 〈こちらの物件〉に興味がある方はお気軽にお問い合わせ下さい!月々のお支払い希望額からお客様が購入可能な物件の価格をシミュレーション致します(*´▽`*)

【前面道路含む現地写真】の画像

【前面道路含む現地写真】 (株)ゆいホームでは、ご購入・ご売却・住宅ローンなどのあらゆるご相談にお応えします。 もちろん相談は無料です!まずはお気軽にお電話下さい。

【前面道路含む現地写真】の画像

【前面道路含む現地写真】 -

【展望】の画像

【展望】 -

【展望】の画像

【展望】 -

【展望】の画像

【展望】 -

【展望】の画像

【展望】 -

【前面道路含む現地写真】の画像

【前面道路含む現地写真】 -

【前面道路含む現地写真】の画像

【前面道路含む現地写真】 -

【外観】の画像 外観
【土地図】の画像 土地図
【参考プラン】の画像 参考プラン
【参考プラン】の画像 参考プラン
【外観】の画像 外観
【前面道路含む現地写真】の画像 前面道路含む現地写真
【前面道路含む現地写真】の画像 前面道路含む現地写真
【前面道路含む現地写真】の画像 前面道路含む現地写真
【前面道路含む現地写真】の画像 前面道路含む現地写真
【前面道路含む現地写真】の画像 前面道路含む現地写真
【前面道路含む現地写真】の画像 前面道路含む現地写真
【前面道路含む現地写真】の画像 前面道路含む現地写真
【前面道路含む現地写真】の画像 前面道路含む現地写真
【前面道路含む現地写真】の画像 前面道路含む現地写真
【前面道路含む現地写真】の画像 前面道路含む現地写真
【前面道路含む現地写真】の画像 前面道路含む現地写真
【展望】の画像 展望
【展望】の画像 展望
【展望】の画像 展望
【展望】の画像 展望
【前面道路含む現地写真】の画像 前面道路含む現地写真
【前面道路含む現地写真】の画像 前面道路含む現地写真

売地

価格
1,380万円
所在地
京都府八幡市八幡舞台 MAP
交通
京阪本線「石清水八幡宮」駅徒歩37分
土地面積(坪数)
公簿 : 100.01㎡ (30.25坪)
建ぺい率
60%
容積率
200%

まずはご相談ください!

075-606-2431

営業時間
9:30~19:00
定休日
毎週水曜日

担当者スタッフより

遠藤勇貴

おすすめポイント

【八幡市八幡舞台 土地《建築条件付き》のご紹介】

◆敷地《約30坪》前道約6.5mで駐車もラクラク
◆約11.6mのゆったりとした間口
◆建物参考プラン図あり
◆京阪『石清水八幡宮駅』徒歩37分 京阪バス『広門停』徒歩7分
中央小学校 男山中学校

◇物件探しからアフターフォローまで、お客様に寄り添い徹底サポート!
◇無理のない返済計画で、憧れのマイホームを実現!

遠藤勇貴 (部署名:営業)

■小学校が徒歩5分と通学も安心の距離
■スーパー《ラ・ムー八幡店》まで徒歩7分と毎日の買い物がラクラク

お家探しは「注文建築」にするべきか「建売住宅」にするべきか、ゆいホームが一緒に考えます。『無理のない理想のマイホーム』を実現しましょう!まずは、お話しをお聞かせ下さい。ご相談は、もちろん無料です!

「どれくらいの建物が建つの」「建物価格はどれくらい?」お客様の知りたいをハウスアドバイザーがお応えします。

◆◇◆注文建築に興味がある方は、お気軽にお問い合わせ下さい!◆◇◆

《現地》を一度ご覧になられませんか?《周辺環境》も含め、現地をご案内いたします。お気軽にお問い合わせ下さい(^^)/

〈こちらの物件〉に興味がある方はお気軽にお問い合わせ下さい!月々のお支払い希望額からお客様が購入可能な物件の価格をシミュレーション致します(*´▽`*)

《ローンの事やお家探しのご相談は(株)ゆいホームにお任せ下さい。ちょっとした疑問にも解りやすくお応えします。》お気軽にどうぞ(^^)/

「毎月の支払いはいくらになるの?」 「今の家賃とそんなに変わらないなら・・」 「土地から探して注文建築するのは簡単?」 「今の持家を売却して新居に引っ越したい!」

(株)ゆいホームでは、ご購入・ご売却・住宅ローンなどのあらゆるご相談にお応えします。 もちろん相談は無料です!まずはお気軽にお電話下さい。

ゆいホームでは、お家の購入について不安やお悩みの方に「マイホームとお金の話~無料診断実施中」です。この機会にぜひお試し下さい(^◇^)まずは、お問合せをお待ちしております!!

まずはご相談ください!

営業時間
9:30~19:00
定休日
毎週水曜日

物件概要

物件番号:97761117 /  情報更新日:2026年04月11日 /  更新予定日:2026年04月25日 /  取引条件の有効期限:2026年04月25日 情報の見方
価格(坪単価) 1,380万円 (45.62万円) 所在地 京都府八幡市八幡舞台 MAP
交通
    京阪本線「石清水八幡宮」駅徒歩37分
    京阪本線「樟葉」駅徒歩48分
土地面積(坪数) 公簿 : 100.01㎡(30.25坪)
私道負担面積 /
セットバック
- / 無 現況 更地
土地権利 所有権 建築条件
地目 / 地勢 宅地 / 平坦 接道状況 一方(西 公道 6.5m 間口 11.6m)
建ぺい率 / 容積率 60% / 200% 最適用途 住宅用地
用途地域 第一種住居 都市計画 市街化区域
土地の敷金 / 保証金 - 借地料 / 借地期間 - / -
傾斜地部分面積 - 路地状敷地 -
取引態様 専属専任媒介 国土法届出要否 不要
引渡時期 相談 引渡条件 更地渡
法令上の制限 高度地区/※第3種高度地区※法22条区域※居住誘導区域※宅地造成等工事規制区域【その他】※建物参考プランあり※前面道路にガスの埋設管なし 販売区画数 / 総区画数 1区画 / 1区画
設備条件
  • 閑静な住宅地
  • 公営水道
  • 公共下水
  • 電気有
備考 【中央小 男山中】
※第3種高度地区
※法22条区域
※居住誘導区域
※宅地造成等工事規制区域
※建物参考プラン【1階:52.17㎡ 2階:44.72㎡】
※外構費用別途
※前面道路にガスの埋設管なし
〔情報と現況が異なる場合は、現況優先といたします。〕
※建築条件付き土地とは、その土地に建築する建物の建築請負契約が、 一定期間内に成立することを条件として売買される土地のことをいいます。 建築請負契約成立に向けて設計プランを協議するため、 土地購入者が自己の希望する建物の設計協議をするために必要な相当の期間の交渉期間が設定され、 その期間内で希望を満たすプランが実現できるかどうかにより結論を出します。 なお、この期間は概ね3ヶ月程度とされています。 納得のいくプランが出来ず、建築請負契約が成立しない場合、土地売買契約は白紙に戻り、 土地契約にかかった代金(土地代金、手付金など)は名目のいかんに関わらず、全て返却されます。

地図

※地図上に表示される物件の位置は付近住所に所在することを表すものであり、実際の物件所在地とは異なる場合がございます。

まずはご相談ください!

営業時間
9:30~19:00
定休日
毎週水曜日

取り扱い店舗(株式会社 ゆいホーム)

株式会社 ゆいホームの画像

所在地
京都府京都市伏見区桃山南大島町73-86 
電話番号
075-606-2431
営業時間
9:30~19:00
定休日
毎週水曜日

まずはご相談ください!

営業時間
9:30~19:00
定休日
毎週水曜日